
Umbau einer Scheune in Payerne
Projekt & Ausführung
—
Das protestantische Sozialzentrum wendete sich an MASKIN, um eine kulturerblich geschützte Scheune umzubauen, welche Verkaufsräume für Gebrauchtartikel beherbergte : die Dachkammern von Payerne.
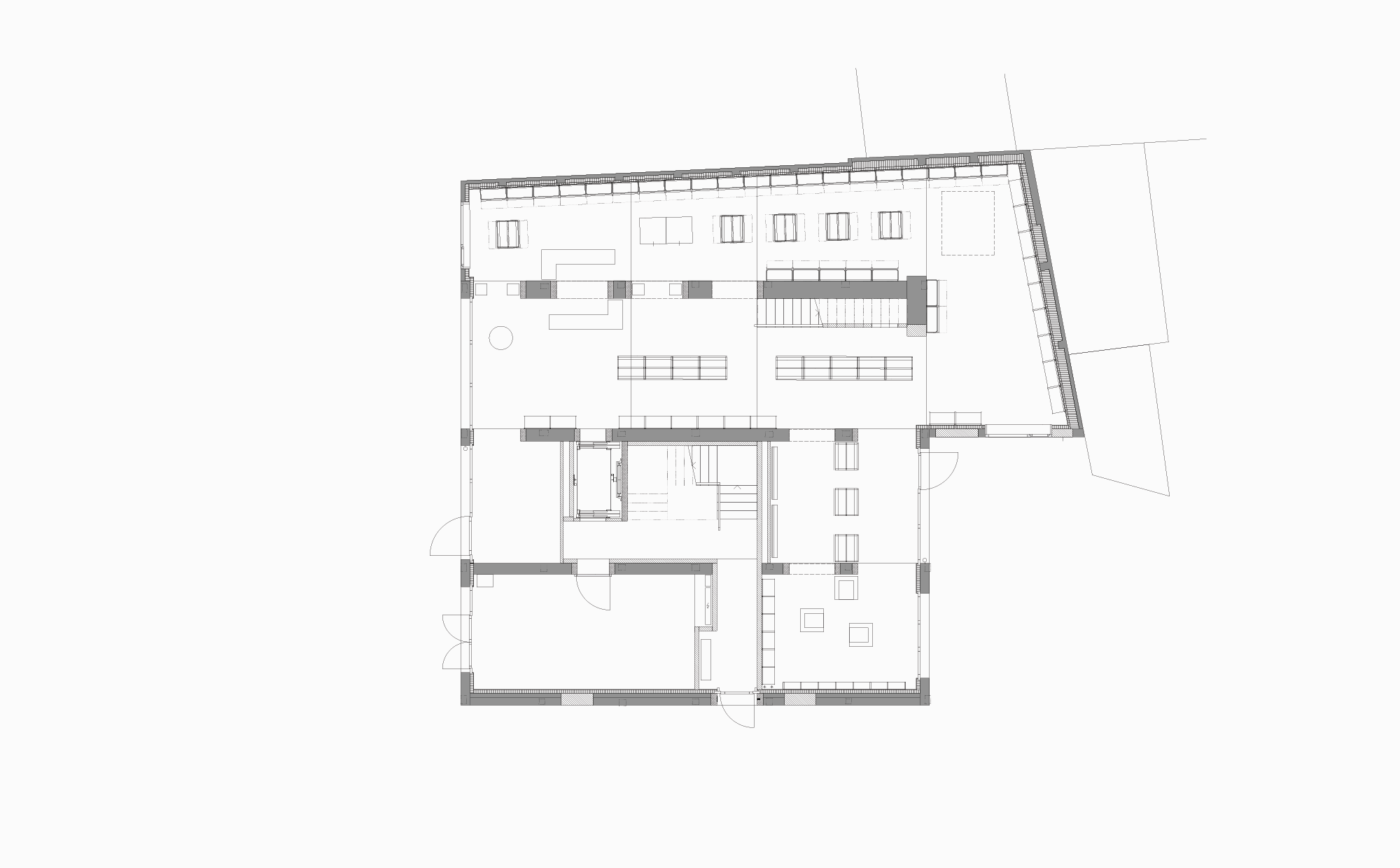
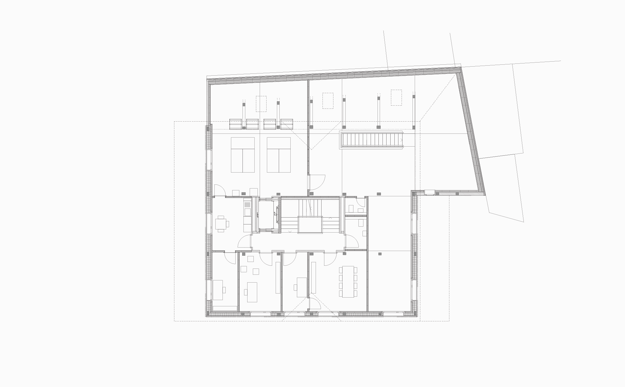
Der Zustand des Gebäudes erzwang eine konsequente Intervention. Das sehr imposante Volumen war schlecht ausgenutzt. Nach der Renovierung des Gebäudes und einer kompletten Sanierung konnten neben den auf zwei Ebenen verteilten Verkaufsflächen auch Beratungsräume und zwei Dachwohnungen untergebracht werden.
Ein neues zentrales Treppenhaus, das zwischen den Masten des bestehenden Rahmens eingefügt ist, fokusiert das Projekt und ermöglicht die Verwaltung der verschiedenen Abläufe. Der Zugang zu den Wohnungen und den Beratungsräumen befindet sich unabhängig von den Verkaufsflächen an der Südfassade. Das Geschäft hat einen Eingang an der Strassenseite, an der Hauptfassade, die seinen Status wiedererlangt.
Das umgebaute Gebäude besteht im Wesentlichen aus Holz und behält seinen authentischen Charakter. Die Auswahl der Materialien ist Teil derselben Logik: Die vorhandene Gebäudestruktur verwerten und die Rohmaterialien übernehmen.
So wird ein altes Gebäude mit einer Mischung von zeitgemässen Verwendungen im Vorort einer Stadt in voller Entwicklung neugeboren.














