Immeuble à Renens

Projet & Réalisation

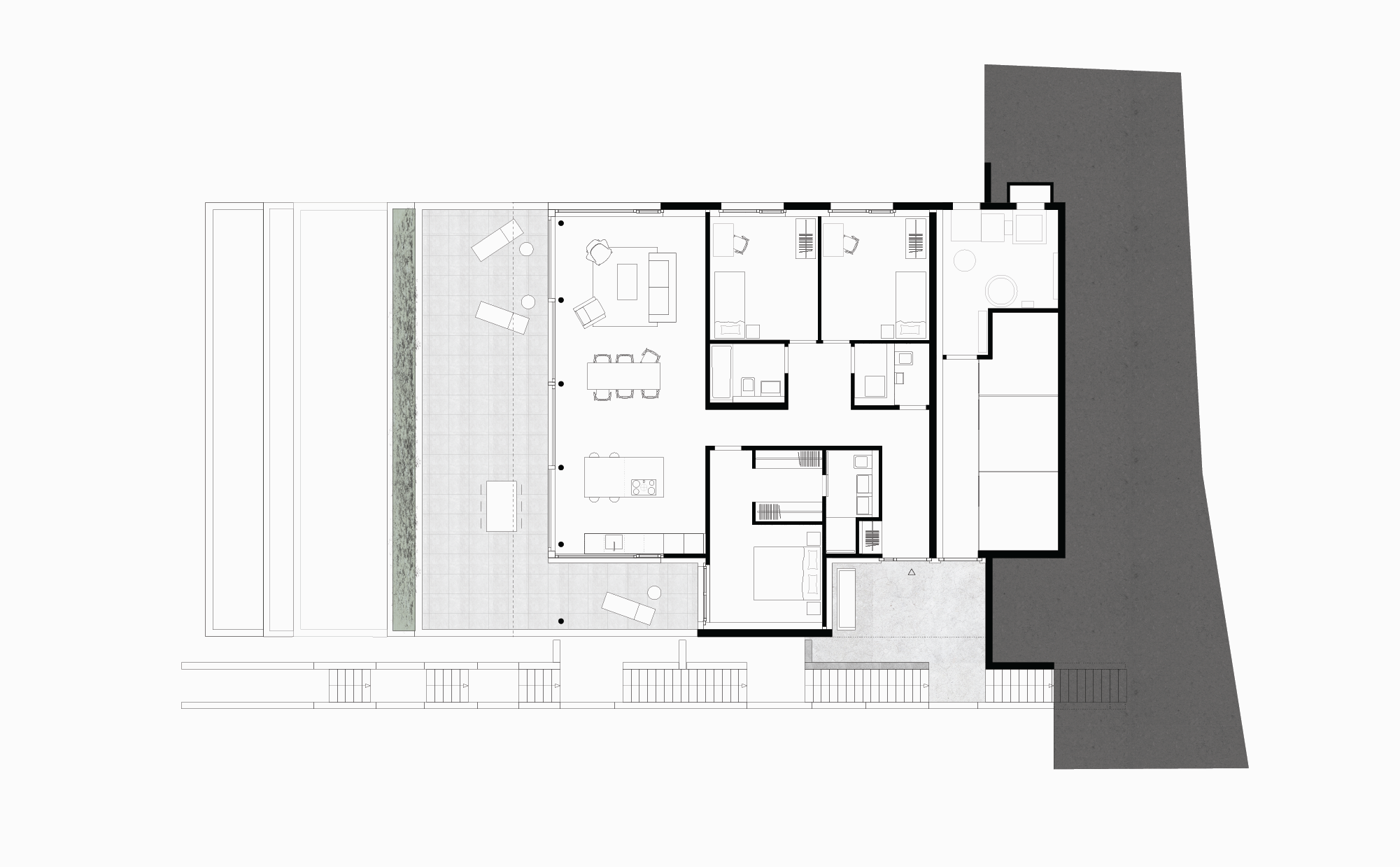
Face au lac et aux Alpes, 3 appartements en terrasses se nichent sur un coteau privilégié. L’implantation ainsi que la volumétrie de ce petit immeuble sont dictés par la topographie exigeante de la parcelle.

Les appartements s’orientent naturellement vers le sud, tirant partie d’une configuration qui offre de grandes terrasses avec vue. La générosité des baies vitrées répond à celle du paysage, appréciable depuis l’intérieur autant que depuis les terrasses. 

Crédits photo: François Vermot